Leverhulme — Heswall Consultation

Have Your Say
New Homes in Heswall

Our proposals for land at Milner Road will help meet the local demand for new homes in Heswall — providing a mix of family and affordable housing in a well-connected parkland setting.

Scroll
164 High-quality new homes
58 Affordable homes
3.9ha Dedicated green infrastructure

A New Community for Heswall

Welcome to our Consultation Website. Our proposals for land at Milner Road will help to meet the local demand for new homes in Heswall. The development will provide a mix of family housing and affordable homes in a highly-accessible, well-connected parkland setting – providing access to new areas of green space for new and existing residents alike.


The development will provide more choice for local people and contribute towards addressing a growing housing shortage. It will create new opportunities for people to stay in and move to Heswall. We would like to hear your views – which will inform the planning application to be submitted to Wirral Council.

Have Your Say
Heswall — aerial view of the site

About the Site

The site is located to the north of Milner Road, between Barnston Road and Whitfield Lane, Heswall. It is situated less than 500 metres from Heswall rail station and around 1km from the shops, supermarkets and services at the heart of Heswall.


This site has been selected as it meets the Government's grey belt planning requirements alongside enabling the provision of well-connected new homes that integrate into the existing landscape and townscape of Heswall.


Have Your Say
Site location map — Milner Road, Heswall

A Thriving, Multi-Generational Community

Our vision is to provide high quality sustainable new homes and integrate an attractive, thriving, multi-generational community into Heswall. We will seek to achieve this by blending a range of energy-efficient homes with accessible green space, safe active travel routes and strong connections to the wider community and countryside.

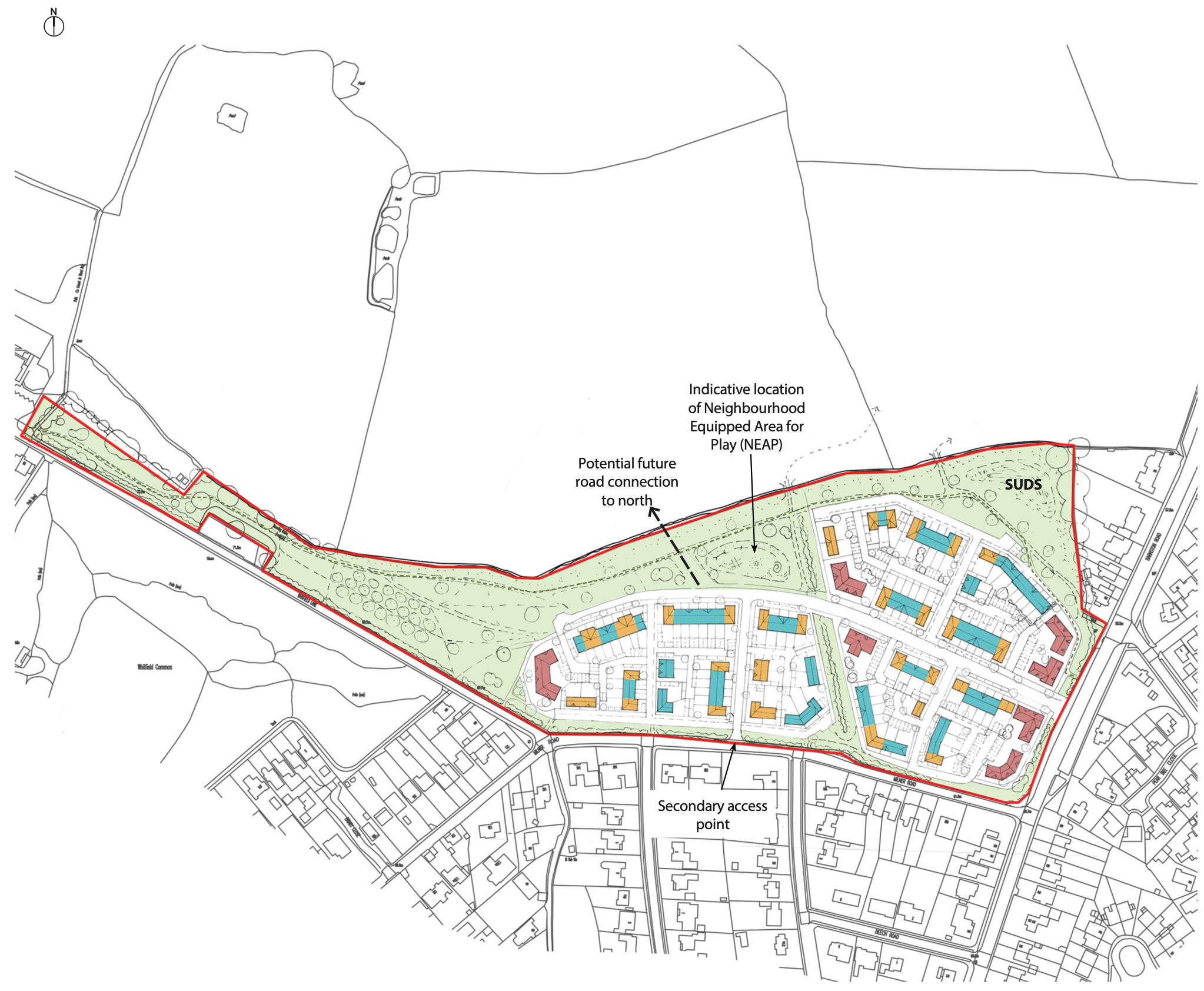
Draft Masterplan — Milner Road, Heswall
Loading masterplan…

Illustrative masterplan — for indicative purposes only, subject to change.

What We Are Proposing

01

A Diverse Housing Mix

We are proposing 164 total dwellings with a mix designed to cater to all stages of life — including 1 & 2-bed flats (max 2.5 storeys), 3-bed houses and 4-bed houses. This variety ensures wide choice for people renting, first-time buyers, growing families, single people, smaller households, retired people and workers.

02

Future-Proofed Homes

We are committed to the provision of sensitively-designed, high quality sustainable homes. All homes will be low-carbon, energy-efficient and designed for long-term value. The construction phase will provide local employment, boost the local economy and ensure a skilled workforce for years to come.

Sustainable design sketch
Green field with wildflowers
03

Greenery, Space & Biodiversity

3.9 hectares of dedicated green infrastructure lies at the heart of our proposals. We will transform private land into a new parkland community, featuring new footpaths and a dedicated cycleway to the local school, supporting biodiversity net gain and sustainable drainage throughout.

04

Access, Transport & Connectivity

The site's sustainable location — less than 500m from Heswall rail station — enables masterplanners to prioritise active travel. Safe, accessible routes for pedestrians and cyclists connect to the public rights of way network, local shops and services, and the wider Wirral countryside.

Over 130 Years of Wirral Life

Leverhulme has been part of the fabric of Wirral life for over 130 years. The 1st Viscount Leverhulme had the vision for Port Sunlight — to this day still used as an example of model village excellence.


Today's Leverhulme encompasses diverse places hosting farms, homes, commercial operations, communities and more. Leverhulme aims to create and sustain environments where people can live happy, healthy and fulfilled lives.

New homes — Heswall development

Feedback Form

We want to hear from you. Your feedback will directly inform the planning application to be submitted to Wirral Council. Please complete the form below by 1 June 2026.

Privacy: Personal data is used solely for this consultation and held securely under UK GDPR. It will not be shared with third parties without your consent.
1
Do you agree that more houses are needed in the area?
2
Do you agree that grey belt development provides a sustainable solution for meeting Wirral's housing needs?
3
Where homes are built, how important are the following to you? Select one option per row
Important Not Important
Good design
New accessible green space
Accessibility to public transport
Contribution to local economy
4
Which elements of this proposal do you think are beneficial to Heswall? Tick as many as apply
5
Overall, what are your thoughts about this proposal? Select a rating from 1 (very negative) to 5 (very positive)
1 — Very negative 5 — Very positive
6
Do you have any other comments on the proposal?
Your Contact Details (Optional)

Please submit your response by 1 June 2026.
Thank you for taking part in this consultation.

Thank you for your feedback!

Your response has been recorded. We will consider all feedback carefully as we develop our proposals for Heswall.